Het Nieuwe Thuis Vlaardingen

Project details

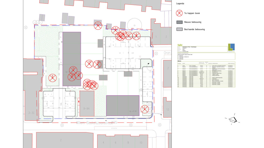
Aan de Oranjestraat en de Willem Beukelszoonstraat in Vlaardingen zijn nieuwe woningen gebouwd. De kavel was ingevuld met een tijdelijke parkeerplaats en een grasveld met bomen. Voor de bouw van de woningen was het noodzakelijk alle bomen op de kavel te kappen. De esdoorns, schietwilgen en een linde waren van matige tot gemiddelde kwaliteit.

Landschappartners heeft het inrichtingsplan van de buitenruimte opgesteld, met parkeerplaatsen, ondergrondse afvalcontainers en een gevarieerde beplanting. De dertien bomen, waarvoor een kapvergunning is aangevraagd, zijn vervangen door veertien nieuwe bomen. Daarnaast zijn nieuwe heesters, vaste planten en siergrassen geplant.

2021
Waal