Nieuw landgoed Buren

Project details

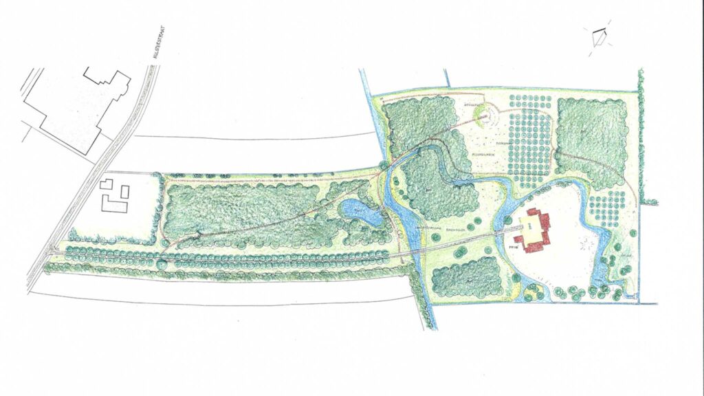
In opdracht van een particuliere eigenaar heeft landschappartners een schetsontwerp gemaakt voor een nieuw te realiseren landgoed in het buitengebied van de gemeente Buren. Het gebied betreft een grootte van circa 10 ha. Om te voldoen aan de procedures ‘Nieuwe Landgoederen’, is voor dit gebied een concept terreininrichtingsplan met bijbehorende visie opgesteld, waarin de bijdrage aan de landschappelijke, ecologische en cultuurhistorische kwaliteit duidelijk wordt uitgewerkt.

In het ontwerp van het nieuwe landgoed worden de kenmerken van het rivierkleilandschap versterkt door de  aanleg van duurzame boscomplexen, hoogstamboomgaarden en weiden die aansluiten op de plaatselijke verkavelingsstructuur. De toegangsweg en beplanting op het terrein sluiten aan bij het historische patroon van de oeverwal en benadrukken het karakter van het landschap. Daarnaast worden de ecologische waarden van het gebied vergroot door de aanleg van poelen, vernattingszones, bosranden, solitaire bomen en kruidenrijke graslanden, wat bijdraagt aan meer biodiversiteit en een betere waterkwaliteit. Tegelijkertijd wordt de cultuurhistorische waarde van Buren versterkt door de ruimtelijke verdichting met bos en boomgaarden, terwijl nieuwe recreatieve mogelijkheden zoals wandelroutes en natuurbeleving worden toegevoegd.

2001
G. Thijsen