Distributiecentrum Volt Hellevoetsluis

Project details

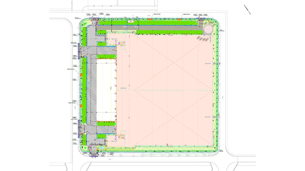
Langs de Voltaweg in Hellevoetsluis is een nieuw bedrijfsgebouw gerealiseerd. Voor de landschappelijke inpassing van het terrein heeft Landschappartners het inrichtingsplan opgesteld. 

Het terrein is functioneel ingericht met de hoofdentree voor personenauto’s aan de Voltaweg en voor vrachtwagens zit de ingang aan de Andersonweg, aan deze zijde zijn ook de loadboxen en parkeervoorzieningen gesitueerd. Voor een goede doorstroom op het terrein is er voor de vrachtwagens een aparte in- en uitgang gecreëerd om te zorgen voor een richtingsverkeer. De voorgevel heeft een formele uitstraling die wordt versterkt door lange rijen ramen en bloembakken met kleurrijke beplanting. Een brede haagbeukhaag rondom het perceel zorgt voor samenhang en geeft het terrein een groen karakter. De keuze voor populierenrijen is gebaseerd op de rationele verkaveling en de kenmerkende lijnen van het oorspronkelijke landschap van deze plek. deparkeerplaatsen zijn voorzien van grasbetontegels die zorgen voor een goede waterinfiltratie. De houten fietsenstallingen bij de kantoorentrees sluiten aan bij het gebruik van natuurlijke materialen. De gekozen beplanting, insectenhotels en nestkasten creëren bovendien leefruimte voor vogels en insecten, zo draagt het terrein bij aan de biodiversiteit en landschappelijke kwaliteit.

Landschappartners heeft het volledige traject verzorgd van ontwerp tot en met de uitvoering, inclusief de technische uitwerking van onder andere de riolering, kabels en leidingen.

Project in samenwerking met Architecten_Lab

2022
Project Volt bv